Rishon LeTzion – Tama 38 Project
Our Projects
Rishon LeTzion – Tama 38 Project
Location: Tel Aviv
Project Snapshot
Project
Client
Value
Figures shown are project-specific.
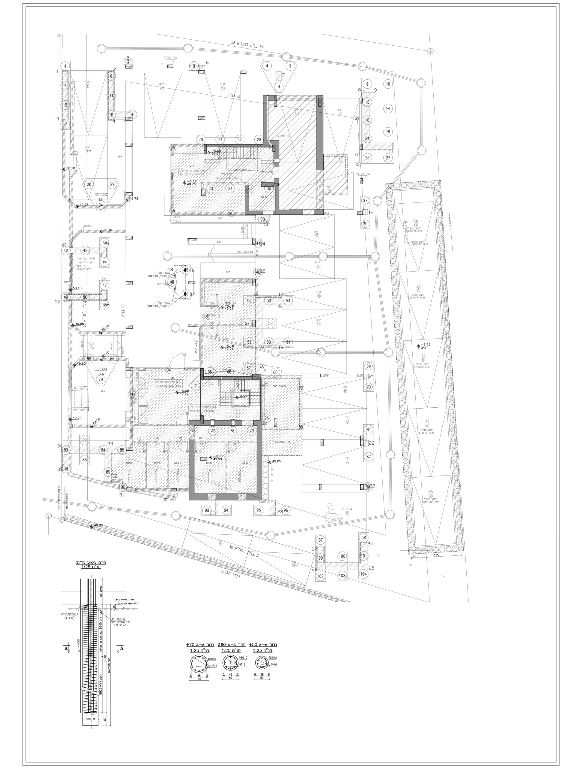
This Tama 38 project involved the reinforcement and extension of an existing residential building, providing over 2,000 m² of additional residential floor area.
The scope of works included the construction of Mamad safe rooms for both existing and newly formed apartments, together with structural strengthening measures to enhance the building’s seismic performance. The interventions were carefully designed to integrate with the existing structure while meeting current safety and regulatory requirements.


תמונה מהעגורן!






